大阪市西区に、ニッポンのあたらしい滞在体験をつくる都市型バケーションレンタル施設「eni.sakuragawa」をグランドオープン。
株式会社LDKプロジェクトのプレスリリース
→ご予約はこちらから https://zero-share.com/sakuragawa_prt
【eni.sakuragawaについて】

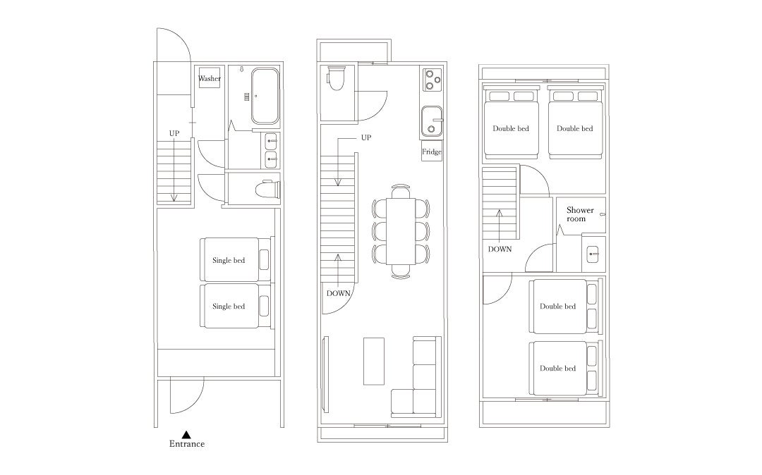
1階玄関を入れば、洞窟をイメージしたベッドルームが宿泊者をお出迎え。外観からは想像できない個性的な間取りとラグジュアリーな空間に驚きと感動が押し寄せること間違いありません。


個性的な間取りながら、滞在者の利便性を追求し1階寝室には浴室付きバスルームと洗面化粧台を2台設置しています。お出かけの準備に忙しい、身だしなみに余念のない女性にはうれしい水回り設備をご用意しています。

eni.シリーズは思い出に残したくなるニッポンのあたらしい滞在体験をコンセプトとした宿泊施設です。寝るだけの施設ではなく、滞在自体を楽しんでもらえるように世界観やインテリアにもこだわりを持っています。施設全部が映えスポットであり、小物アイテムにも気を配り、eni.の刻印がある鏡は撮影スポットとしても利用いただけます。


2階は滞在者が一同に集えるキッチン併設の広々としたリビングダイニングエリアです。まるで高級ホテルのような洗練された空間で非日常体験を堪能することができます。65インチ大型液晶テレビにはクロームキャストが付いているので、旅の思い出を画像や動画で映すこともできます。


料理や食事に必要なモノ全てが揃ったキッチン。調理器具やキッチン家電、食器、グラス、カトラリーは豊富に取り揃えているので住むように宿泊を体験することができます。



3階はプライベートを保てる寝室が2部屋、各部屋ダブルベッド2台ずつ設置しています。1階の浴槽付きバスルームとは別に、3階にシャワールームがあるので入浴時間帯の混雑を回避することができます。
【eni.sakuragawa間取り図】

eni.sakuragawaは、最大12名まで宿泊できる3階建ての貸切一軒家。3寝室(1階1室:シングルベッド2台、3階2室:各部屋ダブルベッド2台)、2階リビングルームのソファは、ダブルサイズソファベッドとしてもご利用いただけます。
【都市型バケーションレンタル eni.】

eni.のコンセプト
extraordinary(非日常)
narrative(物語)
identity(自分であること)
. 周りを旅する
忙しい日々を離れて、人生をすこしだけステイしませんか。eni.(エニ)はニッポンのあたらしい滞在体験をつくる都市型バケーションレンタルです。ゆっくりとくつろげる空間づくりをいちばんに考えながら、思い出に残したくなる世界観とインテリアにもこだわりました。リラックスするほどに、本来のジブンを取り戻していく。旅する人たちの物語の1ページをつづる、そんな居場所になりたいと思います。
【ご予約受付中】
ご予約は下記よりお願いします。
最低宿泊日数が2泊3日からとなります。
→eni.シリーズのご予約はこちら https://zero-share.com/eni_prt
<当施設の概要>
●施設名:eni.sakuragawa
●住所 :〒556-0022 大阪市浪速区桜川4-12-28
●アクセス :地下鉄千日前線 桜川駅から徒歩5分
●予約サイト:https://zero-share.com/sakuragawa_prt
●料金プラン:25,000円~
※予約サイトより、事前にご予約ください。
民泊運営についての相談は下記フォームより受付をしています。
▼▼個別相談フォーム▼▼

