YADOKARI株式会社のプレスリリース

「WABLE」は、YADOKARIと、暮らしにまつわる業界で活躍するデザイナー達のコラボレーションによる、個性豊かなタイニーハウスを提案するシリーズ「TINY HOUSE NEW EYES」のラインナップとして、設計事務所「NagaArts」とのコラボレーションのもと開発されました。
このモデルは、在宅ワークが普及し、働き方が多様化する現代において、「”職住一体”の暮らしに、新たな選択肢をつくる」というテーマの下に開発されたワーケーションモデルです。
「WABLE」という名前には、仕事(Work)と暮らしの可能性(Able)を拡げる、新しいテーブル(Table)という意味が込められています。その名の通り、仕事に集中できる大きなテーブルと、暮らしの快適さを兼ね備えたベッドスペースの共存による、ワークスペースとホテルが融合したような空間が特徴です。
日々のルーティンから解放され、心身をリフレッシュさせながら、創造性を引き出す日常体験が、暮らしに新たな選択肢をもたらします。
◾️「TINY HOUSE NEW EYES」特設ページ:https://neweyes.yadokari.net/
◾️「WABLE」商品ページ:https://neweyes.yadokari.net/products_02
-
「WABLE」の特徴・デザインについて

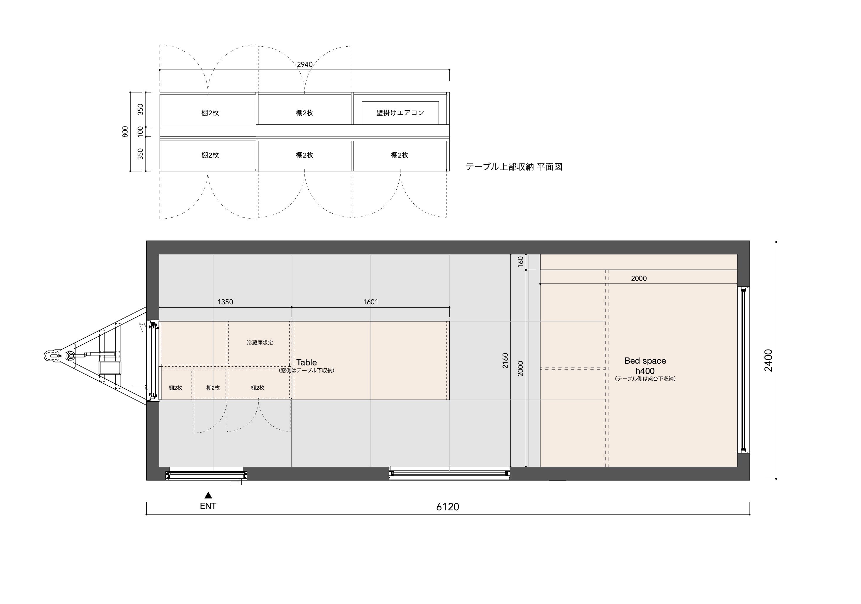
1.大きなテーブルと収納
大きなテーブルを含む造作収納は、小さな空間を最大限活用するためにオリジナルで考えられた家具です。ワーキング利用にはもちろん、休日の手仕事を楽しむ作業台としての利用など、使い方に合わせ収納部分の割り付け変更が可能です。また、収納の扉はシェア利用の際に鍵付とすることも可能です。

2.アイランドテーブル配置
トレーラーハウスは、屋内幅が2200mm程度。実はテーブルを挟むとちょうど対面利用が可能な寸法となっています。一人での利用はもちろん、複数人の打ち合わせでテーブルを囲んだり、テーブルの両端で異なる作業を並行したり。テーブルが真ん中に配置してあるからこそ、多様な使い方を、あらゆる形で受け止めることが可能です。

3.「あえて狭く」が「広さ」をつくる
大きなテーブルによって、内部は狭くなります。しかし、接する面が増え、多方向の視線が生まれます。窓が相乗効果を生み出し、景色だけでなく、陽の移ろいや風の通り道など、座る場所によって、さらなる変化や広がりを与えてくれます。

4.質感ある仕上げ素材とカラーバリエーション
飾りすぎず、それでいて贅沢な滞在体験を提供するため、質感のある仕上げ素材を選定しました。内装は、床がタイル仕上げ、壁天井は左官仕上げ。外装は金属サイディングが基本ですが、オプションで左官仕上げも選定可能です。カラーバリエーションを用意しており、好みに応じてカスタマイズ可能です。

-
仕様詳細



-
販売価格
本体価格:¥9,300,000~(税別)
※別途工事費用についてはご相談ください
◾️「WABLE」商品ページ:https://neweyes.yadokari.net/products_02
-
NagaArts一級建築士事務所|「WABLE」デザイナー

2018年NagaArts設立。住宅設計を主軸とし、国内外で住宅の新築、リフォームを手掛ける。
明快なコンセプト。合理的。シンプル。細部へのこだわり。唯一無二。
そんな建築をご提案するのが得意。
NagaArts一級建築士事務所
代表 永田敦
URL nagaarts.com
-
タイニーハウスとは?
タイニーハウスとは「小屋のようなちいさな家」を指します。明確な基準はありませんが、一般的には固定型と移動型のものが存在しています。なかでも、移動型に分類される車輪付きのトレーラーハウスは、ミニマルな住まいとしてはもちろん、ホテルや店舗などの特徴的な施設開発の手段として、幅広く活用され始めています。
建築物ではなく車両であるため、税金や建築条件上でのメリットがある他、移設して再利用することも可能です。インフラの引き込みも可能なため、一般の建築物と同様に快適かつ多用途に使用することができます。
また、その小さなサイズとシンプルな構造によるエネルギー効率の向上は、環境負荷の低減という視点からも注目を集めています。
自動車用トレーラーの世界市場規模は2030年には297億9350万米ドルに達すると予測されており、現在、国内市場においても異業種からの参入も相次ぎ、拡大傾向にあります。
YADOKARIでは2013年の設立当時から「タイニーハウス」「ミニマルライフ」「多拠点居住」に着目し、場所・時間・お金に縛られないライフスタイルの実現に向けてタイニーハウス文化の発信と自社製品の開発に取り組んでいます。
-
取材のご案内について
取材は随時受け付けております。ご案内を送付いたしますので、内覧等を希望されるメディア関係者の方は広報担当(info@yadokari.net)までご連絡ください。
◾️「TINY HOUSE NEW EYES」特設ページ:https://neweyes.yadokari.net/
◾️「WABLE」商品ページ:https://neweyes.yadokari.net/products_02
-
会社概要

YADOKARI株式会社
代表者:代表取締役 上杉勢太・さわだいっせい
設立:2013年11月1日
本社所在地:神奈川県横浜市中区日ノ出町2-166先 Tinys Yokohama Hinodecho
資本金:5,244万円
事業内容:新空間プラットフォーム事業/タイニーハウス販売・リース/メディア・プロモーション/まちづくり・エリアリノベーション
コーポレートサイト:https://yadokari.company/
自社メディア:https://yadokari.net/
暮らし(住まい方・働き方)の原点を問い直し、これからを考えるソーシャルデザインカンパニー「YADOKARI」。暮らしに関わる企画プロデュース・ブランディング・PR、メディア運営、遊休不動産と可動産(タイニーハウス・VAN)の活用・施設運営、まちづくり支援などを主に手掛ける。
世界中の小さな家やミニマルライフ事例を紹介する「YADOKARI.net」、全国の100均物件マッチングサイト「空き家ゲートウェイ」などを企画運営。自社施設として可動産を活用した日本初の高架下複合施設「Tinys Yokohama Hinodecho(グッドデザイン賞、ソトノバアワード場のデザイン賞)」、可動産イベントキッチンスペース「BETTARA STAND 日本橋」を企画・運営。黒川紀章設計「中銀カプセルタワービル」などの名建築の保全再生にも携わる。
著書に「ニッポンの新しい小屋暮らし」(光文社)「アイム・ミニマリスト」(三栄書房)「未来住まい方会議」(三輪舎)「月極本」などがあり日本以外にも中国、韓国などアジア圏での出版も多数展開。

