大阪を中心に民泊/貸別荘施設を運営する株式会社LDKプロジェクト(代表:生田博之)は2025年12月20日(土)に「Sayuragi Villa by IZA」をリニューアルオープンいたします。
株式会社LDKプロジェクトのプレスリリース
《公式予約》https://go2iza.com/sayuragi-villa/
《Instagram》https://go2iza.com/url/prt_ins_go2


Sayuragi Villa by IZA について

今回リニューアルオープンする「Sayuragi Villa by IZA(サユラギ ヴィラ バイ イザ)」は、和歌山県西牟婁郡白浜町に位置し、白良浜まで車で約5分の立地にあります。観光地としても知られる白浜エリアにありながら、喧騒から少し離れた落ち着いた環境が魅力です。
周辺には、新鮮な海の幸が揃う「とれとれ市場」や、美しい白砂が広がる白良浜など、白浜を代表するスポットが点在。観光と滞在をバランスよく楽しめるロケーションとなっています。
施設内には、本格的なバレルサウナやチラー付き水風呂、ジャグジー、焚き火スペースを新たに設え、既存のヴィラに “ととのう” 体験をプラス。海の気配を感じる白浜ならではの空気の中で、仲間や家族とともに、心身を解きほぐす非日常の時間をお過ごしいただけます。

吹き抜けのリビングは、明るい色味の木材を用いたフローリングや壁面が印象的な、開放感あふれる空間です。ダイニングテーブルやチェアにも木の温もりを感じられるデザインを採用し、全体をやさしく、落ち着いた雰囲気にまとめています。
また、ゆったりとしたソファを備え、大人数で集まっても窮屈さを感じにくく、家族や仲間と自然体でくつろげる心地よさが魅力です。吹き抜けならではの縦の広がりと柔らかな光が、滞在時間をより快適なものにしてくれます。
昼も夜も、自分だけの “ととのい” 空間で癒すひととき

円形のフォルムが特徴のバレルサウナ内は、大人がゆったりと横になれるほどの広さを確保しており、心身を解きほぐすための余白が感じられる空間です。正面には大きなドーム型の窓を設え、外の景色を眺めながら、開放感とともにじっくりと身体を温めることができます。


日中は、自然光が差し込み、周囲の風景と一体になるような心地よさを。
夜には、サウナ室内が柔らかなオレンジ色のライトに包まれ、昼とは異なる落ち着いた雰囲気へと表情を変えます。木の質感と灯りが調和した空間は、静かにととのう時間をより印象深いものにしてくれます。


サウナの後には、チラー付き水風呂をご用意。水温を一定に保てるため、季節を問わず安定した冷たさで、すっきりとした「ととのい」を体感できます。
しっかりとクールダウンした後は、ジャグジーへ。身体をやさしく包み込むような水の感触が、サウナで高まった熱を穏やかに受け止め、深いリラックスへと導きます。

夜にはライトアップされたジャグジーが静かに空間を照らし、サウナとともに落ち着いた雰囲気を演出。サウナ、水風呂、ジャグジー、それぞれの心地よさを行き来しながら、余韻まで楽しめる「ととのい」の時間をお過ごしいただけます。
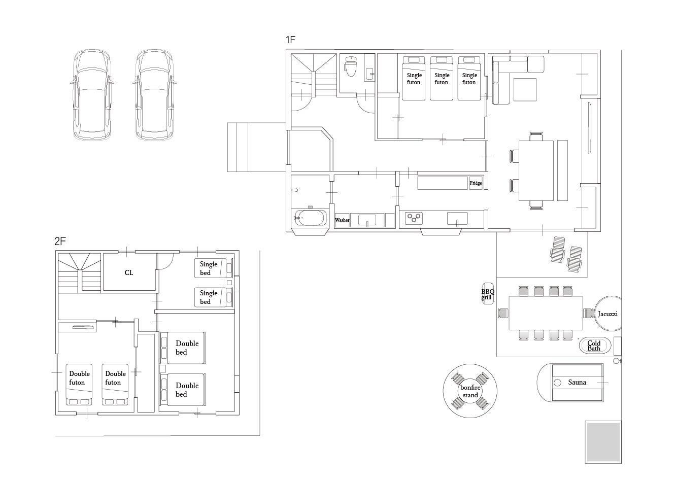
寝室について

1階には、畳の香りに包まれた和室をご用意。手足を伸ばしてゆったりとくつろげる空間で、小さなお子様連れはもちろん、畳の上でゆっくり眠りたい方にも安心してお過ごしいただけます。

2階にはプライベートが保たれたベッドルームを3室ご用意。ダブルベッド2台を備えた寝室が2室、シングルベッド2台の寝室が1室あり、1階の和室と合わせて最大14名様まで快適に宿泊いただけます。グループやファミリーでの滞在でも互いに気兼ねせず、深い眠りに就ける設計です。
白良浜からほど近く、海と自然の心地よさが調和する特別な滞在空間。
ご家族や友人と過ごす時間を、ゆったりと、のんびり楽しめるヴィラとして、
多くの方に知っていただければ幸いです。

間取り図

<当施設の概要>
●施設名:Sayuragi Villa by IZA
(サユラギ ヴィラ バイ イザ)
●住所 :〒649-2211 和歌山県西牟婁郡白浜町3768−3
●アクセス :大阪市内から車で約2時間
※乗用車2台まで施設内駐車場ご利用可能です。
●料金プラン:70,000円~
《公式予約》https://go2iza.com/sayuragi-villa/
サウナ付き貸別荘 IZAとは

IZA(イザ)は「遊ぶ・感じる・整う」をコンセプトとした、プライベートサウナ付きのリゾート型貸別荘ブランドです。こだわりの設備、落ち着いたインテリアや家具 プライベートのサウナやジャグジーなど、都会から離れて非日常的なリゾート空間が体験できます。家族や恋人 友達同士での旅行はもちろん、社内研修やワーケーション 小規模イベントなど、幅広い用途でご利用いただけます。
《IZAシリーズ公式予約》https://go2iza.com/prs_iza_hp
《Instagram》http://go2iza.com/url/prt_ins_go2
わたしたちのこと

人生に綴られる ひとときをつくる
宿泊は「お客様の時間をお預かりして、快適で価値のある空間とサービスを提供すること」だと私たちは考えています。「また泊まりたい」と思ってもらえる施設をつくりたい。 設備やサービス、インテリア、清掃にいたるまで、 手を抜かず、心をこめる。訪れた人の「人生」 という物語の1ページになるような思い出に残る時間と体験ができる宿泊施設を提供します。
企 業 名 : 株式会社LDKプロジェクト
所 在 地 : 〒540-0017 大阪府大阪市中央区松屋町住吉6-26 eninal MACCHAMACHI 2F
代 表 者 : 代表取締役 生田博之
事業概要: 民泊施設の運営管理、レンタルスペースの運営管理、不動産賃貸業、清掃業務、貸別荘運
営、サウナ事業
《公式HP》https://ldk-pjt.com/prs_ldk_hp
【民泊運営代行に関するご相談やご質問先】
使用していない部屋を活用したい、民泊に興味があるけれど知識もなく不安、実際に自分でもできるか確認したいなど、些細な相談でもかまいません。業界をリードする大阪で長年民泊を営むLDKプロジェクトが丁寧にお答えします。お気軽にどうぞ!
《民泊代行ページ》https://ldk-pjt.com/ldk_daiko
【本件に関するお問合わせ・取材等のお申込み先】
株式会社LDKプロジェクト 運営管理担当
テレビや雑誌、新聞社様からの取材も大歓迎です。
お気軽にお問合せくださいませ。
E-mail:marketing.div@ldk-pjt.com

