季節を追い越す、プライベートヒートプール、一足早い夏を「ザ・プールハウス」で独り占め
株式会社プロスパーデザインのプレスリリース
プールハウス・マジラインプール設計施工販売の株式会社プロスパーデザイン(CEO 竹下孝司)が手がける住宅宿泊施設ブランド:「THE POOL HOUSE」ザ・プールハウス(https://thepoolhouse.jp/)2026年4月1日より「TOKYOBAY」「KISRAZU」の2施設で、夏まで待てない方へ!
「約32℃ プライベートヒートプール」をお愉しみいただけます。
遠くに行かなくても味わえる贅沢なトキを過ごせるリゾート空間
それが「THE POOL HOUSE」です。驚きと納得を誘う「場所×設計」のギャップがいままでにないリゾート体験を叶えます。


「TOKYOBAY」 ドアを開ければもうそこはリゾートの世界 場所とのギャップに驚く
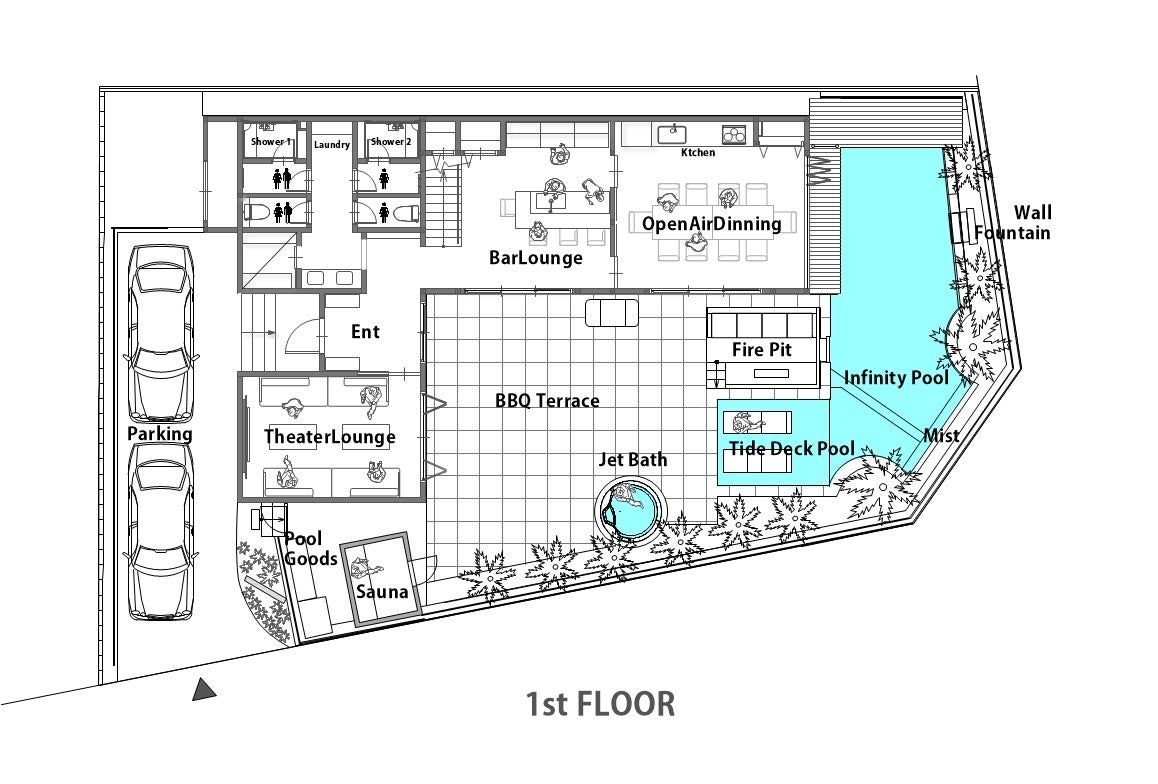
TOKYOBAYは、新習志野駅から約2kmの工業団地内にある。訪れる人は近隣の風景と建物のドアを開けたとき、その風景とのギャップに驚きを隠せない。サウナで体を温める。サウナで整う。ファイヤーピットで癒される。TOKYOBAYは、都心から車で約30分、1番近いプールリゾートです。







サウナ
5~6人で寛げるサイズ

オープンエアダイニング
雨の日も焼肉・鍋パーティ-

バーラウンジ
グラスを傾けながら過ごす

シアターラウンジ
Net完備・オンライン会議も可能

「KISARAZU」三井アウトレットパーク木更津まで歩いて12分 房総旅行のハブにも
KISARAZUは、アクアライン金田インター出口より車で7分。
ミストサウナで体を温める。屋上スカイテラスで整う。都心から車で約45分。







アウトドアリビング

ミストサウナ
ナイトプールを見ながら

ナイトプール
幻想的な水景ナイトプール

ドアを開ければ
南国リゾート!
CHILLNN(チルン)サイト ベストレート【5%OFF】実施中

CHILLNN(チルン)予約サイト、ベストレート5%OFFにてご予約いただけます。
【TOKYOBAY】https://www.chillnn.com/19983eafdac1f0
【KISARAZU】https://www.chillnn.com/19a7b2c445a3bb#hotelMenu
「THE POOL HOUSE TOKYO BAY」プライベートヒートプール概要
施設名:THE POOL HOUSE TOKYO BAY
所在地:千葉県習志野市茜浜1-2-17-2
プライベートヒートプール(温水プール)開始日:2026年4月1日より
温水プール水温:約32℃(外部環境により異なる場合があります)
タイプ:一棟貸切型プール付リゾートヴィラ(宿泊・日帰り・撮影スタジオ)
定員:宿泊最大12名・日帰り最大20名
オーナー:株式会社プロスパーデザイン(https://www.prosper-d.co.jp/)
委託運営者:株式会社PQD(https://pqd.co.jp/)
▶予約直サイト:CHILLNN(チルン)ベストレート5%OFF実施中
https://www.chillnn.com/19983eafdac1f0
▶公式 「THE POOL HOUSE(ザ・プールハウス)予約サイト」:https://thepoolhouse.jp/
▶公式YouTubeChannel:https://www.youtube.com/@THEPOOLHOUSE_pd
▶公式Instagram:https://www.instagram.com/the__pool__house/
▶ 問い合わせ:03-6705-5554 email: vacation.rental.hr@gmail.com (株式会社PQD)
「THE POOL HOUSE KISARAZU」プライベートヒートプール概要
施設名 :THE POOL HOUSE KISARAZU
所在地 :千葉県木更津市牛込474-4
プライベートヒートプール(温水プール)開始日:2026年4月1日より
温水プール水温:約32℃(外部環境により異なる場合があります)
タイプ :一棟貸切型プール付リゾートヴィラ(民泊)
主要アメニティー:プール・ミストサウナ・BBQコーナー・屋上スカイテラス
定 員 :宿泊最大8名、3LDK
オーナー :株式会社プロスパーデザイン(https://www.prosper-d.co.jp/)
委託運営者:株式会社バンデリエ (https://hakuspe.com/)
03−6825−0704 hakuspe@bandelie.co.jp
▶予約直サイト:CHILLNN(チルン)ベストレート5%OFF実施中
https://www.chillnn.com/19a7b2c445a3bb#hotelMenu
▶公式 「THE POOL HOUSE(ザ・プールハウス)予約サイト」:https://thepoolhouse.jp/
▶公式YouTubeChannel: https://www.youtube.com/@THEPOOLHOUSE_pd
▶公式Instagram:https://www.instagram.com/the__pool__house/
▶ 問い合わせ:株式会社バンデリエ 03−6825−0704

株式会社プロスパーデザイン

ザ・プールハウス

ベストレート5%OFF

プールのある家

